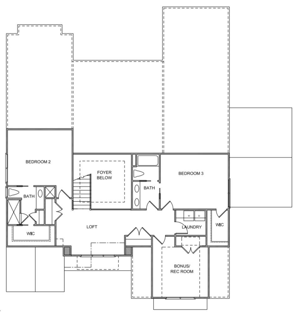
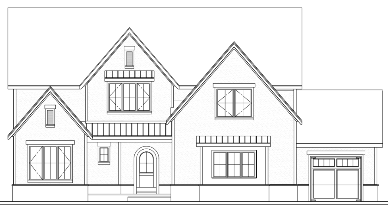
The Porter
1.5 story home with 5 bedrooms, 4 bathrooms with a loft space and a 3 car garage. 3,411 square feet.
1.5 story home with 5 bedrooms, 4 bathrooms with a loft space and a 3 car garage. 3,411 square feet.