The Piper

The house that started it all!

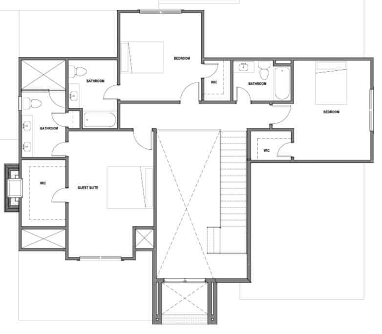
A 1.5 story home with 5 bedrooms, 5.5 bathrooms and a 3 car garage. 3,300 square feet.